Pas encore inscrit ? Creez un Canalblog!

Créer mon blog
Malou1980

Malou1980

Tags associés : 3d, photoshop, autocad, facade

Ses blogs

Architecte DPLG - Emter Marie-Laure

D'origine Alsacienne j'ai suivi mes études d'architecture à Nancy puis à Nantes. Diplômée depuis novembre 2007, j'ai eu la chance de travailler dans l'agence La Murisserie à Nantes pendant 2 ans puis j'ai découvert le monde de la maison individuelle
Malou1980 Malou1980
Articles : 30
Depuis : 05/11/2008
Categorie : Emploi, Enseignement & Etudes

Articles à découvrir

Restructuration des bureaux de la Poste - Nantes (44)

Restructuration des bureaux de la poste - nantes (44)

Groundfloor plan le service immobilier de la poste nous a confié plusieurs restructurations intérieures de leur bureaux principaux. toute la structure restait en place et les plateaux sur 2 niveaux devaient être libérés de toutes les cloisons. les fluides devaient reprendre les chemins existants et quelques aménagement ont du être réalisés
Façade partielle du projet

Façade partielle du projet

Part of the street elevation different ideas of color for the elevation le rez-de-chaussée constitue la base du bâtiment et revêt un enduit ciment coloré et semble porter la partie supérieure revêtue de zinc. l'entrée se fait par une grille de ferronerie dessinée par l'agence. la teinte de la maison au centre prend toute son importance, du
Plan partiel du rez-de-chaussée, stade APD

Plan partiel du rez-de-chaussée, stade apd

Groundfloor of the north part of the school l'école se développe sur 2 niveaux tout en longueur. a l'origine une maison avec façade sur rue et deux parcelles inoccupées de chaque côté. notre rôle fut de restaurer la maison centrale en école primaire et d'y apposer deux corps de bâtiment avec un parement de zinc. les classes d'apprentissage
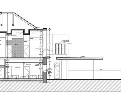
Coupes du projet

Coupes du projet

Cross section on the house and the yard longitudinal section on the motricity room
Création de la Société ACASELA

Création de la société acasela

Acasela.... ma petite entreprise voit le jour le 1er juin 2010 à toulouse.... un joli mélange entre "a cappella" et "casela"... l'idée est simplement venue d'un départ sans orchestre au rythme des somptueuses petites gariottes du quercy! mon pêché mignon, vous l'aurez deviné, c'est la réhabilitation.... l'envie d'un nouveau musicien me tara